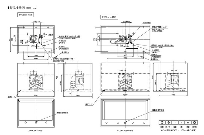
富士工業/FUJIOH 【CCUBL-1251 S/TW】 換気扇 レンジフード 間口 1200mm アリアフィーナ センタークーボ 天井取付タイプ ※受注生産品 [♪§] [戻る]