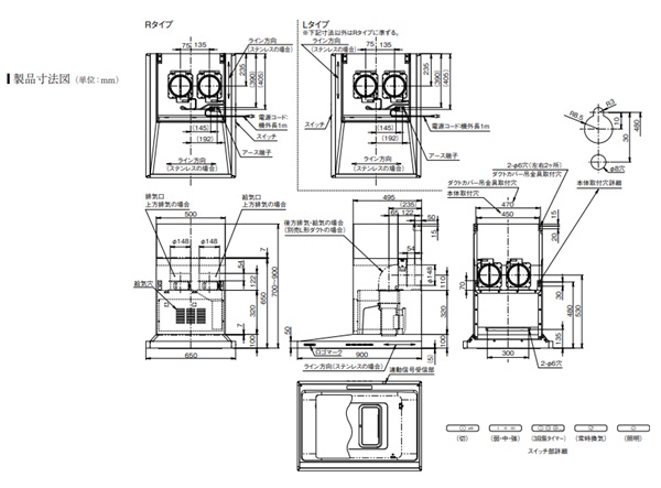
富士工業/FUJIOH [SBARR-903VR/L TW/TBK] 換気扇 レンジフード アリアフィーナ サイドバルケッタ R モデル 横壁取付タイプ ※受注生産品 ♪§
[戻る]